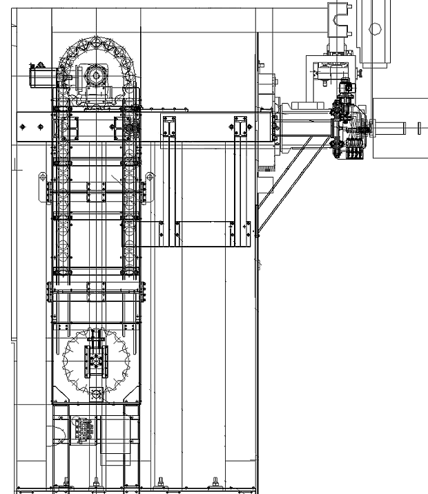
Dieses vertikale Werkzeugmagazin besteht aus einem massiven Kettenmagazin inklusive schwenkbaren Werkzeugwechsler.
Die verschiedenen Werkzeuge, die bis zu einem max. Gewicht von 100 kg betragen können, werden bei diesem Werkzeugspeicher in speziellen Steilkegeln sicher Transport. Der Werkzeugwechsel erfolgt über eine hydraulische Greifeinheit.
