KBH Palettierer

Hochleistungs-Palettierer für die Lebensmittelindustrie

Für das vollautomatische Palettieren von stapelfähigem Fördergut auf Europaletten oder Industriepaletten mit variablem Setzmuster. Für die Endverpackung in einer Molkerei-Produktion, die eine Vielfalt verschiedener Produkte in großen und kleinen Mengen abfüllt, wurde ein flexibler, mit einer 4-Achsen NC-Steuerung ausgerüsteter Hochleistungs-Palettierer entwickelt.

Video - KBH Palettierer

Video Palettierer

Endverpackung in Molkereibetrieben

Die sehr hohe Leistung von ca. 1,1 sek. pro Tray kombiniert mit dem fließenden Loswechsel bei Produktumstellung in der Abfüllanlage, ermöglichen pro Schicht eine mehrmalige Produktionsumstellung, um auch kleinere Mengen von Nischenprodukten kostengünstig produzieren zu können.

Durch den Einsatz dieses innovativen Palettierers ist die Molkerei in der Lage, mit geringerem Personalaufwand schneller und flexibler auf die Anforderungen des Marktes zu reagieren.

Palettierer KBH

Anwendungsbeispiel:

  • Endverpackung von Milchprodukten in Molkereibetrieben
  • Stapelung von Kartonagen aller Abmessungen
  • Anwendbar in verschiedenen Branchen

Fördergut-Beispiele:

  • 4-Wege Europalette 1200 x 800 x 150 mm
  • Industriepalette 1200 x 1000 x 150 mm
  • stapelfähiges Fördergut wie z.B. Trays, Kartons u. a

Vorteile:

  • Setzmuster variabel, über NC-Verteiler, ansteuerbare Dreheinheiten und mehrspurige Voranreihung
  • großes Leerpalettenmagazin integriert
  • Verbund- oder Türmchenstapelung
  • Transportsysteme mit Kunststoffketten verfügbar
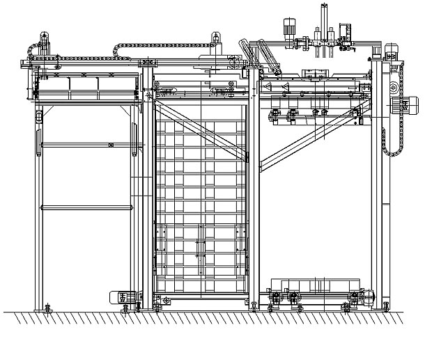
Palettierer Zeichnung

KBH Palettierer Zeichnung

Neben der Lebensmittelindustrie kann unsere Palettiertechnik auch für andere Branchen eingesetzt werden.

So sind zum Beispiel automatisierte Anwendungen in der Druckindustrie sowie in anderen produzierenden Gewerben jederzeit möglich. Die einzelnen Transport- und Stapelelemente lassen sich hierbei an die neuen Bedürfnisse anpassen.

KBH Automation Vertrieb

Für weitere Informationen stehen wir Ihnen gerne zur Verfügung!