Werkstückspeicher Paternoster

Werkstückspeicher als raumsparende Be- und Entladelösung

In der Automation und im Maschinenbau müssen Werkstücke oft zwischengespeichert werden, um einen kontinuierlichen Produktionsablauf zu gewährleisten.

Video - Paternoster für Werkstücke

Video Werkstückspeicher

Werkstückspeicher auf engstem Raum

Der Werkstückspeicher als Paternoster wurde entwickelt, um auf engstem Raum möglichst viele Werkstücke ablegen zu können und bei Bedarf einen schnellen Zugriff während der Produktion zu ermöglichen.

In diesem Beispiel wurden Einstellwerkstücke aufbewahrt, die für die Einrichtung von Produktionsmaschinen benötigt wurden.

Bei einem erhöhten Speicherbedarf von Werkstücken ist eine höhere Bauform bei diesem Speicher jederzeit möglich.

Werkstückspeicher Paternoster

Werkstückspeicherung

Durch die modulare Bauform der Werkstückträger lassen sich verschiedene Werkstückformen und unterschiedliche Werkstückgrößen in einem Produktionsprozess zwischenlagern.

Die Werkstückträger sind durch eine Stift-Kodierung, die sich unterhalb der Paletten befindet, individuell einlesbar und ermöglichen hierdurch eine direkte Zuordnung der Werkstücke.

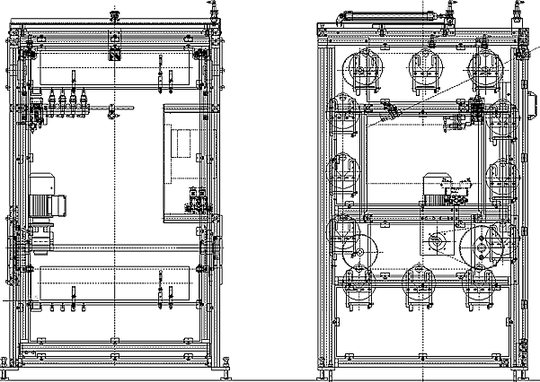
Werkstueckspeicher als Paternoster technische Zeichnung

Vorteile:

  • Vertikalförderer für eine mehrseitige Beladung
  • Werkstückträger als freischwingender Gondeltechnik für den einfachen Umbau
  • Grundgestell aus einem stabilen und sehr flexiblen Aluminium-Profil
  • Eine modulare Konstruktion, die individuell auf die Kundenbedingungen angepasst werden kann
KBH Automation Vertrieb

Für weitere Informationen stehen wir Ihnen gerne zur Verfügung!